Villa Bifamiliare a Villa San Carlo

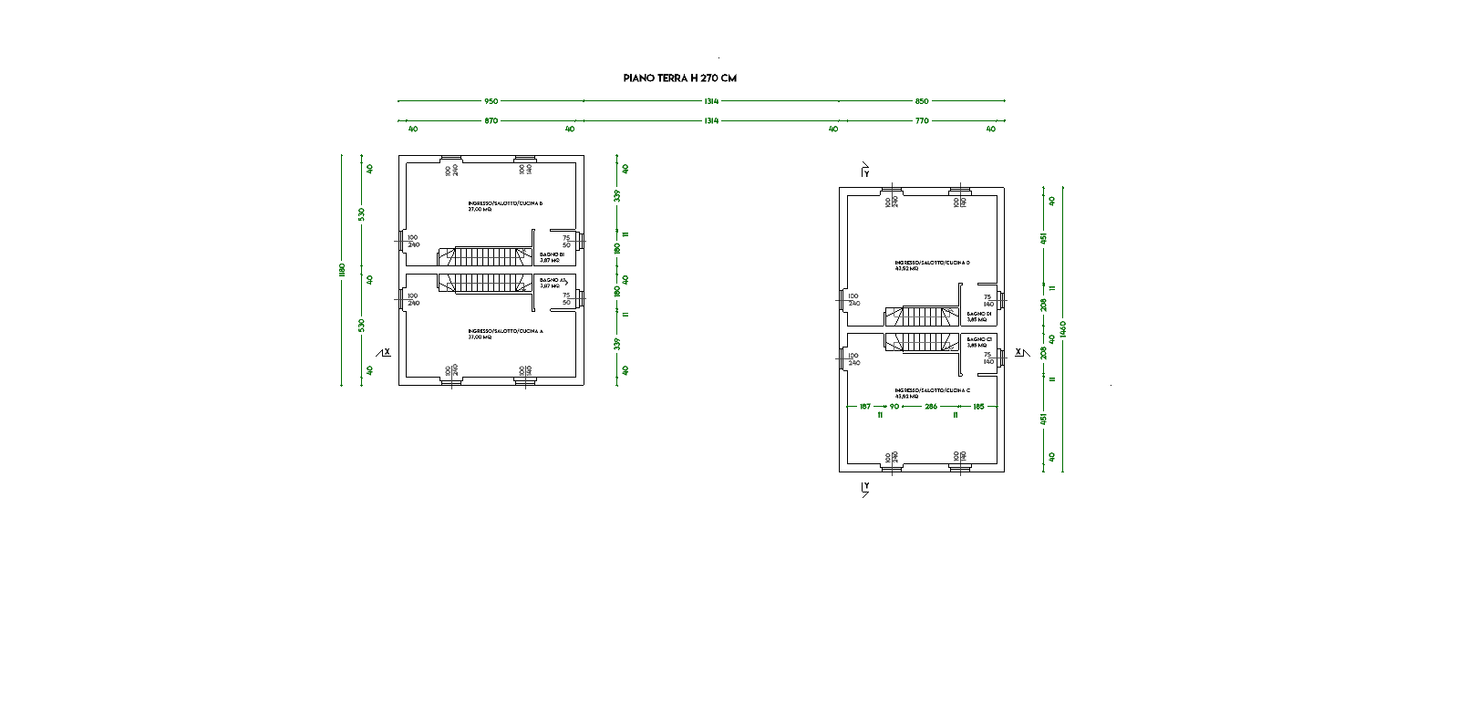
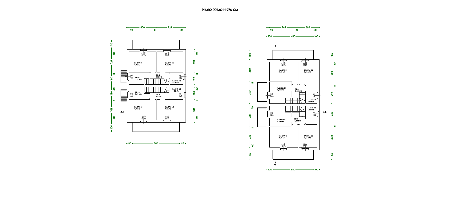
Scopri il tuo nuovo rifugio a Villa San Carlo! Questa splendida villetta bifamiliare, realizzate nuove a partire dal 2026, offre un perfetto equilibrio tra comfort e modernità. Con una superficie commerciale di 170 m², la casa dispone di 4 locali spaziosi e 2 bagni eleganti, ideali per famiglie o per chi ama avere spazio a disposizione.Il giardino privato è un angolo di tranquillità dove poter trascorrere momenti di relax all'aperto.

La proprietà include un box doppio e la possibilità di aggiungere ulteriori box o taverne, perfetti per soddisfare ogni esigenza.

La casa è dotata di riscaldamento a pavimento e pompa di calore autonoma, garantendo un comfort ottimale in ogni stagione.

Inoltre, l'impianto fotovoltaico e la classe energetica 8minima garantita) A4 assicurano un consumo energetico ridotto, contribuendo a un ambiente più sostenibile. La predisposizione per il condizionamento e il WMC offre ulteriori possibilità di personalizzazione. Non perdere l'occasione di vivere in un luogo dove ogni dettaglio è pensato per il tuo benessere

Avanti
Avanti

IN VENDITA: Capannone Industriale Artigianale a Calolziocorte (lc) mq 365,00